• Teknolojiyi Mühendislikle Buluşturuyoruz.

Project Info

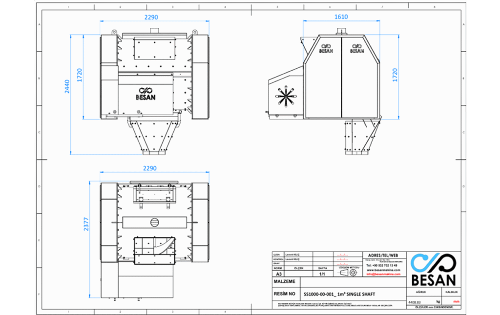
Single Shaft Mikser

Single Shaft Mikser Genel Özellikler SS 0.5 SS 1
Şıkıştırılmış Beton Hacmi / Compacted Concrete Capacity 0.5 m³ 1 m³
Yükleme Kapasitesi / Loading Capacity 0.75 m³ 1,25 m³
Motor Gücü / Engine Power 1 x 22 kW 1 x 37 kW
Redüktör / Gearbox D. planet redüktör D. planet redüktör
Otomatik Yağlama Sistemi / Automatic Lubrication LINCOLN LINCOLN
Karıştırıcı ve Sıyırıcı Kollar / Mixing and Scrapper Arms Sfero Sfero
Karıştırıcı Kol Paletleri / Wearing Plates of Mixing Arms Ni-hard 4 Ni-hard 4
Sıyırıcı Kol Paletleri / Wearing Plates of Scraper Arms Ni-hard 4 Ni-hard 4
Yan Duvar Plakaları / Side Wall Wearing Plates 10 mm Hardox 10 mm Hardox
Taban Plakaları / Bottom Wearing Plates Ni-hard 4 Ni-hard 4